SCIA ENGINEER
Navigation überspringen
Projekte
Referenzen
Über Uns
Kontakt
Navigation überspringen
Impressum
| English
Beratung
Entwurf
Optimierung
Baueingabe
Bauphysik
Statik/Dynamik
Ausführungsplanung
Industrie + Gewerbe
Projekte
>
Komplexbauten
>
Tribünen
>
SV Sandhausen West Tribüne 2014
>
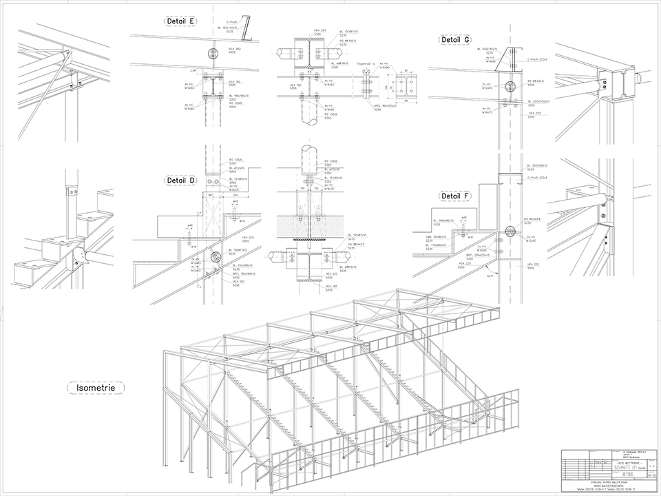
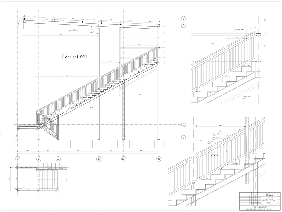
Details: SV Sandhausen Westtribüne 2014
Bitte klicken Sie auf eines der Bilder, um die Galerie zu öffnen.
<<
Zurück